





Arquiteto: Alex Heidrick Peixoto de Brito
Ano: 2019
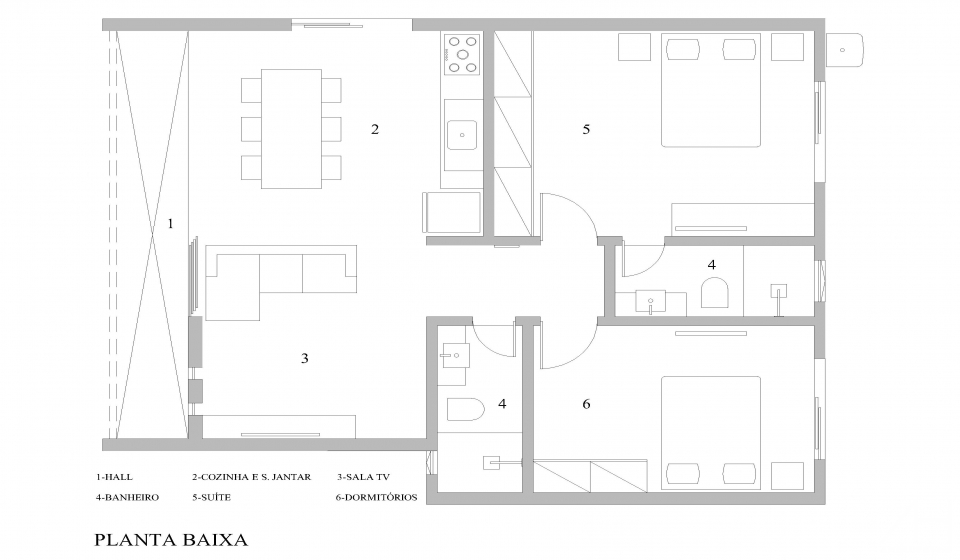
Área construída: 70,00m²
O projeto da Habitação Popular de 70,00m² é composto por 1 suíte, 1 quarto, banheiro social e sala de estar ligada à cozinha americana. O projeto foi elaborado de maneira que os ambientes se tornassem agradáveis e funcionais.A cozinha/sala de estar possui grandes vãos de abertura que proporcionam maior iluminação e ventilação natural, integrando o ambiente interno ao externo.
A fachada possui uma arquitetura minimalista, o que traz charme, sofisticação e praticidade, além de um baixo custo, devido aos ângulos retos e ao layout funcional.